大田区、品川区
Luxsis 洗足池 Vol.9

Luxsis 洗足池 Vol.9
PDFファイルダウンロード
物件の詳細情報をみる
周辺環境
物件概要
| 所在地 | 東京都大田区東雪谷4丁目 | 種別 | 建築条件付売地 |
|---|---|---|---|
| 価格 | 土地価格 10,490万円 |
地目 | 宅地 |
| 交通 | 東急池上線「洗足池」駅 徒歩9分 東急池上線「石川台」駅 徒歩11分 東急大井町線「北千束」駅 徒歩20分 |
建築確認番号 | - |
| 総戸(区画)数 | 1区画 | 分譲戸(区画)数 | 1区画 |
| 建築構造 | - | 設備 | 電力各社/公営水道/都市ガス/本下水 |
| 敷地面積 | 約95㎡ | ||
| 間取り | - | 車庫・カースペース | - |
| 完成時期 | - | 引渡時期 | 相談 |
| 建ぺい率 | 60%(※準防火地域内の準耐火建築物の場合+10%) | 容積率 | 160% |
| 防火地区 | 準防火地域 | 高度地区 | 第2種高度地区 |
| 用途地域 | 第一種中高層住居専用地域 | 都市計画 | 都市計画区域 市街化区域 |
| 計画施設(道路)等 | - | その他法令上の制限 | 都市緑地法 景観法 航空法 宅地造成及び特定盛土等規制法 |
| 土地の権利形態 | 所有権 | 借地料/借地期間 | - |
| 接道・接面 | 北側約4.0m | ||
| 私道負担面積 | 私道部分 54.06㎡(持分1/6) | 設計会社 | 株式会社エスケーホーム |
| 情報更新日 | 2026年4月30日 | 次回更新予定日 | 2026年6月30日 |
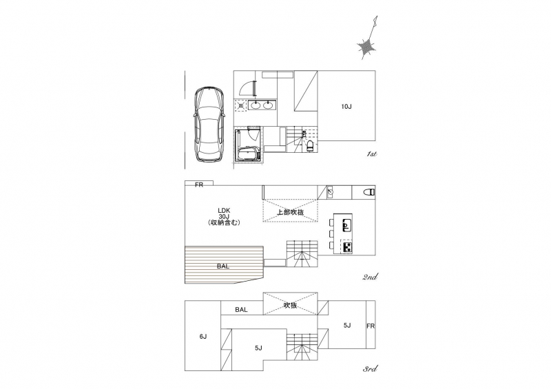
| 備考 | 【建物面積】 約168㎡(車庫面積 約19㎡・ポーチ部分 約3㎡・バルコニー部分 約10㎡含む) 【建物参考プラン金額】 4,500万円(税込) 【土地+建物参考プラン総額】 10,490万円+4,500万円(税込)=14,990万円(税込) ------------------------------------------------------------------------------------------------ Luxsis(ラグシス)シリーズは弊社(販売)を含むエスケーホームグループにて仕入・設計・施工・販売まで一貫して行なっています。その為、弊社へ直接お問合せ頂いた際には本物件の特徴や情報を細部まで知る事が出来ます。本広告以外で本物件をお知りになったお客様も是非、直接弊社へお問合せください。また、グループ一貫体制ですので、イチ早くお得な情報をお届けする事が出来ます。 取引態様:一般媒介 ----------------------------------------------------------------------------------------------------- 建築条件付売地とは土地売買契約締結後、3ヶ月以内の一定交渉期間に建物の建築請負契約を結ぶことを条件に販売されます。建築請負契約を結ぶ不動産会社は、売主指定の不動産会社になります。 詳細はお問い合わせください。 なお期間中に建築請負契約が成立しなかった場合は、土地売買契約は白紙となり、不動産会社が受領した金額は全て返還されます。 |
||







