杉並区
Luxsis 西永福 Vol.7
Luxsis 西永福 Vol.7
PDFファイルダウンロード
物件の詳細情報をみる
周辺環境
物件概要
| 所在地 | 東京都杉並区下高井戸3丁目 | 種別 | 売地(建築条件無し) |
|---|---|---|---|
| 価格 | A区画:8,590万円 B区画:9,390万円 C区画:9,990万円 |
地目 | 宅地 |
| 交通 | 京王井の頭線「西永福」駅 徒歩10分 京王線「桜上水」駅 徒歩12分 京王線「上北沢」駅 徒歩16分 京王線・東急世田谷線「下高井戸」駅 徒歩22分 |
建築確認番号 | - |
| 総戸(区画)数 | 3区画 | 分譲戸(区画)数 | 3区画 |
| 建築構造 | - | 設備 | 電力各社/公営水道/都市ガス/本下水 |
| 敷地面積 | A区画:約130.12㎡ B区画:約123.22㎡ C区画:約132.28㎡ |
建物延床面積 | - |
| 間取り | - | 車庫・カースペース | - |
| 完成時期 | - | 引渡時期 | 相談 |
| 建ぺい率 | 40%(※準防火地域内の準耐火建築物の場合+10%) | 容積率 | 80% |
| 防火地区 | 準防火地域 | 高度地区 | 第1種高度地区 絶対高さ10m |
| 用途地域 | 第一種低層住居専用地域 | 都市計画 | 都市計画区域 市街化区域 |
| 計画施設(道路)等 | - | その他法令上の制限 | 緑化地域 都市緑地法 敷地面積の最低限度80㎡ 景観法 宅地造成及び特定盛土等規制法 |
| 土地の権利形態 | 所有権 | 借地料/借地期間 | - |
| 接道・接面 | 南側公道 西側5.4m公道 |
||
| 私道負担面積 | SB部分 B区画:1.01㎡ C区画:1.06㎡ (各持分1/1) |
設計会社 | 株式会社エスケーホーム |
| 情報更新日 | 2026年1月17日 | 次回更新予定日 | 2026年3月30日 |
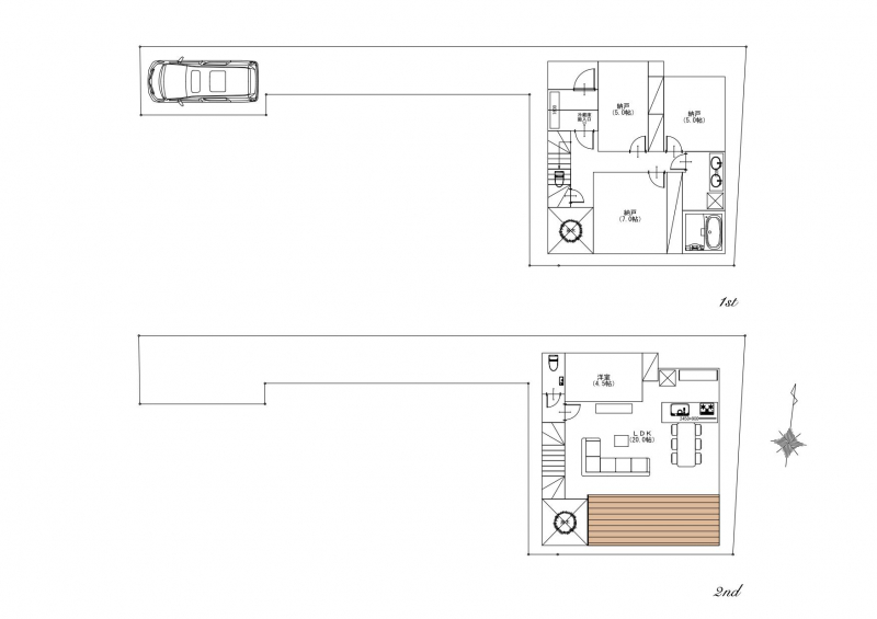
| 備考 | 【建物参考プラン面積】 A区画:約104㎡ B区画:約98㎡ C区画:約105㎡ 【建物参考プラン価格】 A区画:価格未定:価格等詳細はお問い合わせください。 B区画:価格未定:価格等詳細はお問い合わせください。 C区画:価格未定:価格等詳細はお問い合わせください。 -------------------------------------------------------------------------------------------------------------- Luxsis(ラグシス)シリーズは弊社(販売)を含むエスケーホームグループにて仕入・設計・施工・販売まで一貫して行なっています。その為、弊社へ直接お問合せ頂いた際には本物件の特徴や情報を細部まで知る事が出来ます。本広告以外で本物件をお知りになったお客様も是非、直接弊社へお問合せください。また、グループ一貫体制ですので、イチ早くお得な情報をお届けする事が出来ます。 取引態様:一般媒介 |
||




