足立区、荒川区、葛飾区、江戸川区
Luxsis 東日暮里 3期
Luxsis 東日暮里 3期
PDFファイルダウンロード
物件の詳細情報をみる
周辺環境
物件概要
| 所在地 | 東京都荒川区東日暮里3丁目 | 種別 | 売地(建築条件無し) |
|---|---|---|---|
| 価格 | 8,990万円 | 地目 | 宅地 |
| 交通 | JR山手線・JR京浜東北線・JR常磐線・上野東京ライン・京成本線・日暮里舎人ライナー「日暮里」駅 徒歩13分 JR常磐線「三河島」駅 徒歩4分 東京メトロ千代田線・JR京浜東北線・JR山手線・日暮里舎人ライナー「西日暮里」駅 徒歩15分 JR山手線・JR京浜東北線「鶯谷」駅 徒歩15分 |
建築確認番号 | - |
| 総戸(区画)数 | 1区画 | 分譲戸(区画)数 | 1区画 |
| 建築構造 | - | 設備 | 電力各社/公営水道/都市ガス/本下水 |
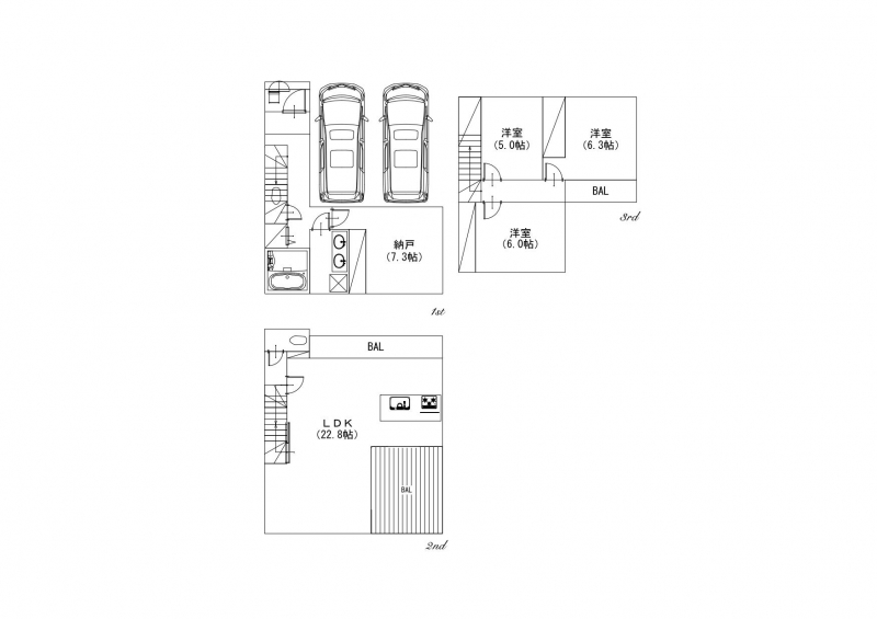
| 敷地面積 | 約81.14㎡ | 建物延床面積 | - |
| 間取り | - | 車庫・カースペース | - |
| 完成時期 | - | 引渡時期 | 相談 |
| 建ぺい率 | 80%(※準防火地域内の準耐火建築物の場合+10%) | 容積率 | 240% |
| 防火地区 | 準防火地域 新たな防火規制区域 |
高度地区 | 第3種高度地区 |
| 用途地域 | 準工業地域 | 都市計画 | 都市計画区域 市街化区域 |
| 計画施設(道路)等 | - | その他法令上の制限 | 敷地面積の最低限度60㎡ 都市緑地法 景観法 宅地造成及び特定盛土等規制法 |
| 土地の権利形態 | 所有権 | 借地料/借地期間 | - |
| 接道・接面 | 北側 | ||
| 私道負担面積 | SB部分 1.61㎡(持分1/1) 私道部分 45.45㎡(持分1/6) |
設計会社 | 株式会社エスケーホーム |
| 情報更新日 | 2026年3月29日 | 次回更新予定日 | 2026年5月30日 |
| 備考 | Luxsis(ラグシス)シリーズは弊社(販売)を含むエスケーホームグループにて仕入・設計・施工・販売まで一貫して行なっています。その為、弊社へ直接お問合せ頂いた際には本物件の特徴や情報を細部まで知る事が出来ます。本広告以外で本物件をお知りになったお客様も是非、直接弊社へお問合せください。また、グループ一貫体制ですので、イチ早くお得な情報をお届けする事が出来ます。 取引態様:一般媒介 |
||


