目黒区
Luxsis 中目黒 Vol.12

Luxsis 中目黒 Vol.12
PDFファイルダウンロード
物件の詳細情報をみる
周辺環境
物件概要
| 所在地 | 東京都目黒区目黒4丁目 | 種別 | 建築条件付売地 |
|---|---|---|---|
| 価格 | 土地価格:12,990万円 | 地目 | 宅地 |
| 交通 | 東急東横線・東京メトロ日比谷線「中目黒」駅 徒歩18分 東急東横線「祐天寺」駅 徒歩15分 東急東横線「学芸大学」駅 徒歩21分 JR山手線・東京メトロ南北線・都営三田線・東急目黒線「目黒」駅 徒歩22分 |
建築確認番号 | - |
| 総戸(区画)数 | 1区画 | 分譲戸(区画)数 | 1区画 |
| 建築構造 | - | 設備 | 電力各社・公営水道・都市ガス・本下水 |
| 敷地面積 | 約102㎡ | 建物延床面積 | - |
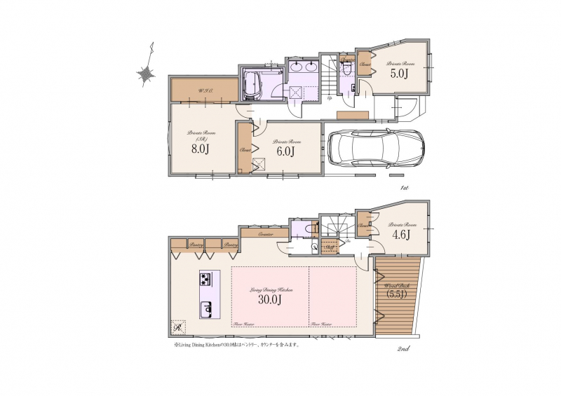
| 間取り | - | 車庫・カースペース | - |
| 完成時期 | - | 引渡時期 | 相談 |
| 建ぺい率 | 60%(※準防火地域内の準耐火建築物の場合+10%) | 容積率 | 150% |
| 防火地区 | 準防火地域 | 高度地区 | 第1種高度地区 絶対高さ制限10m |
| 用途地域 | 第一種低層住居専用地域 | 都市計画 | 都市計画区域 市街化区域 |
| 計画施設(道路)等 | - | その他法令上の制限 | 敷地面積の最低限度70㎡ 景観法 宅地造成及び特定盛土等規制法 |
| 土地の権利形態 | 所有権 | 借地料/借地期間 | - |
| 接道・接面 | 東側公道 | ||
| 私道負担面積 | SB部分 約6.31㎡(持分1/1) |
設計会社 | 株式会社エスケーホーム |
| 情報更新日 | 2025年12月11日 | 次回更新予定日 | 2026年2月28日 |
| 備考 | 【建物参考プラン面積】 約136㎡(車庫面積 約14㎡を含む) 【建物参考プラン価格】 4,000万円(税込) 【土地+建物参考プラン総額】 12,990万円+4,000万円(税込)=16,990万円(税込) ------------------------------------------------------------------------------------------------------------------------------------------ Luxsis(ラグシス)シリーズは弊社(販売)を含むエスケーホームグループにて仕入・設計・施工・販売まで一貫して行なっています。その為、弊社へ直接お問合せ頂いた際には本物件の特徴や情報を細部まで知る事が出来ます。本広告以外で本物件をお知りになったお客様も是非、直接弊社へお問合せください。また、グループ一貫体制ですので、イチ早くお得な情報をお届けする事が出来ます。 取引態様:一般媒介 ----------------------------------------------------------------------------------------------------------------------------------------------------- 建築条件付売地とは土地売買契約締結後、3ヶ月以内の一定交渉期間に建物の建築請負契約を結ぶことを条件に販売されます。建築請負契約を結ぶ不動産会社は、売主指定の不動産会社になります。 詳細はお問い合わせください。 なお期間中に建築請負契約が成立しなかった場合は、土地売買契約は白紙となり、不動産会社が受領した金額は全て返還されます。 |
||







