練馬区、板橋区
Luxsis 石神井公園 Vol.18

Luxsis 石神井公園 Vol.18
PDFファイルダウンロード
物件の詳細情報をみる
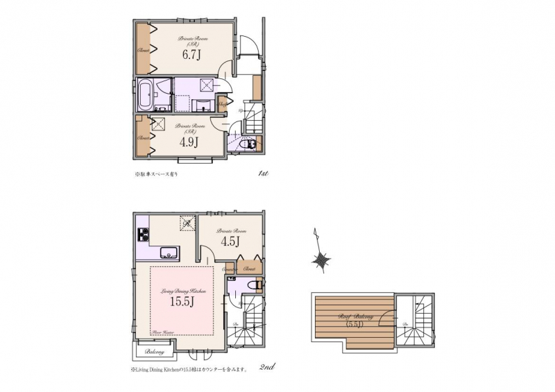
物件概要
| 所在地 | 東京都練馬区石神井台2丁目 | 種別 | 新築分譲住宅 |
|---|---|---|---|
| 価格 | A号棟:6,190万円(税込) | 地目 | 宅地 |
| 交通 | 西武池袋線「石神井公園」駅 徒歩23分 西武新宿線「上石神井」駅 徒歩19分 西武池袋線「大泉学園」駅 徒歩23分 |
建築確認番号 | A号棟:確認サービス第KS125-3120-52162号 |
| 総戸(区画)数 | 4区画 | 分譲戸(区画)数 | 1棟 |
| 建築構造 | 木造スレート茸2階建て(制震住宅+耐震住宅) | 設備 | 電力各社/公営水道/都市ガス/本下水 |
| 敷地面積 | A号棟:82.56㎡ | 建物延床面積 | A号棟:82.55㎡ |
| 間取り | A号棟:1LDK+2S+塔屋 | 車庫・カースペース | A号棟:あり |
| 完成時期 | 2026年7月末 | 引渡時期 | 2026年8月末 |
| 建ぺい率 | 50%(※準防火地域内の準耐火建築物の場合+10%) | 容積率 | 100% |
| 防火地区 | 準防火地域 | 高度地区 | 第1種高度地区 絶対高さ制限10m |
| 用途地域 | 第一種低層住居専用地域 | 都市計画 | 都市計画区域 市街化区域 |
| 計画施設(道路)等 | - | その他法令上の制限 | 敷地面積の最低限度80㎡ 景観法 都市緑地法 宅地造成及び特定盛土等規制法 土地区画整理事業を施行すべき区域(練馬大泉石神井付近) |
| 土地の権利形態 | 所有権 | 借地料/借地期間 | - |
| 接道・接面 | 北側公道 | ||
| 私道負担面積 | - | 設計会社 | 株式会社エスケーホーム |
| 情報更新日 | 2025年12月4日 | 次回更新予定日 | 2026年2月28日 |
| 備考 | 【路地状部分】 A号棟:約23.16㎡ -------------------------------------------------------------------------------------------------------------- Luxsis(ラグシス)シリーズは弊社(販売)を含むエスケーホームグループにて仕入・設計・施工・販売まで一貫して行なっています。その為、弊社へ直接お問合せ頂いた際には本物件の特徴や情報を細部まで知る事が出来ます。本広告以外で本物件をお知りになったお客様も是非、直接弊社へお問合せください。また、グループ一貫体制ですので、イチ早くお得な情報をお届けする事が出来ます。 取引態様:一般媒介 |
||










