大田区、品川区
Luxsis 品川 Vol.2

Luxsis 品川 Vol.2
PDFファイルダウンロード
物件の詳細情報をみる
周辺環境
物件概要
| 所在地 | 東京都品川区北品川2丁目 | 種別 | 新築分譲住宅 |
|---|---|---|---|
| 価格 | B号棟:17,190万円(税込) C号棟:17,590万円(税込) |
地目 | 宅地 |
| 交通 | JR東海道線・JR京浜東北線・JR山手線・JR横須賀線「品川」駅 徒歩19分 京浜本線「新馬場」駅 徒歩3分 京浜本線「北品川」駅 徒歩8分 りんかい線・東京モノレール「天王洲アイル」駅 徒歩13分 JR山手線・JR埼京線・JR湘南新宿ライン・りんかい線「大崎」駅 徒歩20分 |
建築確認番号 | B号棟:確認サービス第KS126-3120-50587号 C号棟:確認サービス第KS126-3120-50588号 |
| 総戸(区画)数 | 3棟 | 分譲戸(区画)数 | 2棟 |
| 建築構造 | 木造スレート茸 3階建て(制震住宅+耐震住宅) | 設備 | 電力各社/公営水道/都市ガス/本下水 |
| 敷地面積 | B号棟:80.70㎡ C号棟:84.95㎡ |
建物延床面積 | B号棟:146.49㎡ C号棟:149.68㎡ |
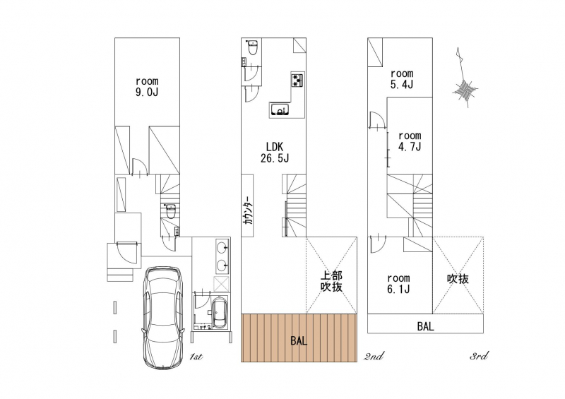
| 間取り | B号棟:2LDK+2S C号棟:3LDK+1S |
車庫・カースペース | 有り |
| 完成時期 | 2026年10月末 | 引渡時期 | 2026年11月末 |
| 建ぺい率 | ①60%(※準防火地域内の準耐火建築物の場合+10%) ②80% |
容積率 | ①160% ②240% |
| 防火地区 | ①準防火地域 ②防火地域 |
高度地区 | ①②第3種高度地区 |
| 用途地域 | ①第一種住居地域 ②近隣商業地域 |
都市計画 | 都市計画区域 市街化区域 |
| 計画施設(道路)等 | - | その他法令上の制限 | ①②景観法 ①②航空法 ①②宅地造成及び特定盛土等規制法 |
| 土地の権利形態 | 所有権 | 借地料/借地期間 | - |
| 接道・接面 | 南側約4.0m | ||
| 私道負担面積 | 私道部分 25.34㎡(持分各1/4) |
設計会社 | 株式会社エスケーホーム |
| 情報更新日 | 2026年3月30日 | 次回更新予定日 | 2026年5月30日 |
| 備考 | 【建物面積】 B号棟:146.49㎡(車庫面積 17.47㎡・ポーチ、通路、デッドスペース部分 6.87㎡、バルコニー部分 0.54㎡含む) C号棟:149.68㎡(車庫・駐輪場 17.37㎡、ポーチ部分 3.82㎡含む) -------------------------------------------------------------------------------------------------------------- Luxsis(ラグシス)シリーズは弊社(販売)を含むエスケーホームグループにて仕入・設計・施工・販売まで一貫して行なっています。その為、弊社へ直接お問合せ頂いた際には本物件の特徴や情報を細部まで知る事が出来ます。本広告以外で本物件をお知りになったお客様も是非、直接弊社へお問合せください。また、グループ一貫体制ですので、イチ早くお得な情報をお届けする事が出来ます。 取引態様:一般媒介 |
||








