中野区、新宿区
Luxsis 中野 Vol.32
Luxsis 中野 Vol.32
PDFファイルダウンロード
物件の詳細情報をみる
周辺環境
物件概要
| 所在地 | 東京都中野区上高田1丁目 | 種別 | 売地(建築条件無し) |
|---|---|---|---|
| 価格 | 9,590万円 | 地目 | 宅地 |
| 交通 | 都営大江戸線・JR中央本線「東中野」駅 徒歩11分 東京メトロ東西線「落合」駅 徒歩11分 西武新宿線「新井薬師前」駅 徒歩12分 都営大江戸線・西武新宿線「中井」駅 徒歩14分 JR中央 総武線・東京メトロ東西線「中野」駅 徒歩17分 |
建築確認番号 | - |
| 総戸(区画)数 | 1区画 | 分譲戸(区画)数 | 1区画 |
| 建築構造 | - | 設備 | 電力各社/公営水道/都市ガス/本下水 |
| 敷地面積 | 約84.91㎡ | 建物延床面積 | - |
| 間取り | - | 車庫・カースペース | - |
| 完成時期 | - | 引渡時期 | 相談 |
| 建ぺい率 | 60%(70%※角地緩和により)(※準防火地域内の準耐火建築物の場合+10%) | 容積率 | 150% |
| 防火地区 | 準防火地域 新たな防火規制区域 |
高度地区 | 第1種高度地区 絶対高さ制限10m |
| 用途地域 | 第一種低層住居専用地域 | 都市計画 | 都市計画区域 市街化区域 |
| 計画施設(道路)等 | - | その他法令上の制限 | 敷地面積の最低限度60㎡ 景観法 航空法 宅地造成及び特定盛土等規制法 |
| 土地の権利形態 | 所有権 | 借地料/借地期間 | - |
| 接道・接面 | 北東側公道 北西側 |
||
| 私道負担面積 | SB部分 12.68㎡(持分1/1) | 設計会社 | 株式会社エスケーホーム |
| 情報更新日 | 2025年11月15日 | 次回更新予定日 | 2026年1月31日 |
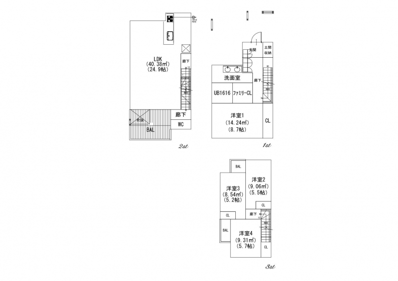
| 備考 | 【敷地面積】 約84.91㎡(東京都建築安全条例による隅切り部分 1.02㎡含む) 【建物参考プラン面積】 約141.53㎡(車庫面積 約14.13㎡含む) 【建物参考プラン価格】 価格未定:価格等詳細はお問い合わせください。 -------------------------------------------------------------------------------------------------------------- Luxsis(ラグシス)シリーズは弊社(販売)を含むエスケーホームグループにて仕入・設計・施工・販売まで一貫して行なっています。その為、弊社へ直接お問合せ頂いた際には本物件の特徴や情報を細部まで知る事が出来ます。本広告以外で本物件をお知りになったお客様も是非、直接弊社へお問合せください。また、グループ一貫体制ですので、イチ早くお得な情報をお届けする事が出来ます。 取引態様:一般媒介 |
||


