世田谷区
Luxsis 赤堤 45期

Luxsis 赤堤 45期
PDFファイルダウンロード
物件の詳細情報をみる
周辺環境
物件概要
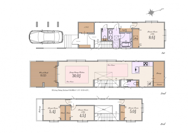
| 所在地 | 東京都世田谷区赤堤5丁目 | 種別 | 新築分譲住宅 |
|---|---|---|---|
| 価格 | B号棟:13,990万円(税込) | 地目 | 宅地 |
| 交通 | 京王線・東急世田谷線「下高井戸」駅 徒歩6分 京王線「桜上水」駅 徒歩7分 東急世田谷線「松原」駅 徒歩13分 京王線「明大前」駅 徒歩19分 小田急小田原線「経堂」駅 徒歩23分 |
建築確認番号 | B号棟: 第KS125-3120-50150号 |
| 総戸(区画)数 | 2棟 | 分譲戸(区画)数 | 1棟 |
| 建築構造 | 木造スレート葺 3階建て(制震住宅+耐震住宅) | 設備 | 電力各社/公営水道/都市ガス/本下水 |
| 敷地面積 | B号棟:99.54㎡ | 建物延床面積 | B号棟:170.18㎡ |
| 間取り | B号棟:2LDK+2S | 車庫・カースペース | 有り |
| 完成時期 | 2026年2月末 | 引渡時期 | 2026年3月末 |
| 建ぺい率 | 60%(※準防火地域内の準耐火建築物の場合+10%) | 容積率 | 176% |
| 防火地区 | 準防火地域 | 高度地区 | 19m第2種高度地区 |
| 用途地域 | 第一種住居地域 | 都市計画 | 都市計画区域 市街化区域 |
| 計画施設(道路)等 | - | その他法令上の制限 | 敷地面積の最低限度70㎡ 景観法 宅地造成及び特定盛土規制法 |
| 土地の権利形態 | 所有権 | 借地料/借地期間 | - |
| 接道・接面 | 南側約4.4m公道 | ||
| 私道負担面積 | - | 設計会社 | 株式会社エスケーホーム |
| 情報更新日 | 2025年11月6日 | 次回更新予定日 | 2026年1月30日 |
| 備考 | 【土地面積】 B号棟:99.54㎡(建築確認申請上の控除面積0.10㎡含む) 【建物面積】 B号棟:170.18㎡(車庫面積15.10㎡・駐輪場面積5.69㎡・宅配ボックス部分0.40㎡・ポーチ部分3.62㎡・外部部分0.18㎡・バルコニー部分3.99㎡含む) --------------------------------------------------------------------------------------------------------------------------------------------------------------- Luxsis(ラグシス)シリーズは弊社(販売)を含むエスケーホームグループにて仕入・設計・施工・販売まで一貫して行なっています。その為、弊社へ直接お問合せ頂いた際には本物件の特徴や情報を細部まで知る事が出来ます。本広告以外で本物件をお知りになったお客様も是非、直接弊社へお問合せください。また、グループ一貫体制ですので、イチ早くお得な情報をお届けする事が出来ます。 取引態様:一般媒介 |
||







