世田谷区
Luxsis 世田谷代田 Vol.1

Luxsis 世田谷代田 Vol.1
PDFファイルダウンロード
物件の詳細情報をみる
物件概要
| 所在地 | 東京都世田谷区代田3丁目 | 種別 | 新築分譲住宅 |
|---|---|---|---|
| 価格 | A号棟:19,590万円(税込) B号棟:19,590万円(税込) |
地目 | 宅地 |
| 交通 | 小田急小田原線「世田谷代田」駅 徒歩11分 東急世田谷線「若林」駅 徒歩10分 小田急小田原線「梅ヶ丘」駅 徒歩12分 小田急小田原線「豪徳寺」駅 徒歩13分 東急世田谷線「山下」駅 徒歩17分 小田急小田原線・京王井の頭線「下北沢」駅 徒歩19分 |
建築確認番号 | A号棟:第KS126-3120-50305号 B号棟:第KS126-3120-50306号 |
| 総戸(区画)数 | 2区画 | 分譲戸(区画)数 | 2区画 |
| 建築構造 | 木造スレート葺 2階建て(制震住宅+耐震住宅) | 設備 | 電力各社/公営水道/都市ガス/本下水 |
| 敷地面積 | A号棟:124.83㎡ B号棟:125.80㎡ |
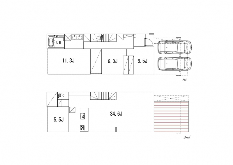
建物延床面積 | A号棟:168.33㎡ B号棟:170.70㎡ |
| 間取り | A号棟:2LDK+2S B号棟:1LDK+3S |
車庫・カースペース | 2台有り |
| 完成時期 | 2026年7月末 | 引渡時期 | 2026年8月末 |
| 建ぺい率 | 60%(準防火地域内の準耐火建築物の場合+10%) | 容積率 | 150% |
| 防火地区 | 準防火地域 | 高度地区 | 第1種高度地区 絶対高さ制限10m |
| 用途地域 | 第一種低層住居専用地域 | 都市計画 | 都市計画区域 市街化区域 |
| 計画施設(道路)等 | - | その他法令上の制限 | 敷地面積の最低限度70㎡ 緑化地域 都市緑地法 景観法 宅地造成及び特定盛土等規制区域 |
| 土地の権利形態 | 所有権 | 借地料/借地期間 | - |
| 接道・接面 | 東側約4.0m公道 | ||
| 私道負担面積 | - | 設計会社 | 株式会社エスケーホーム |
| 情報更新日 | 2026年2月13日 | 次回更新予定日 | 2026年4月30日 |
| 備考 | 【建物面積】 A号棟:168.33㎡(車庫面積 14.09㎡、外部参入面積 10.17㎡含む) B号棟:170.70㎡(車庫面積 13.68㎡、外部参入面積 10.99㎡含む) -------------------------------------------------------------------------------------------------------------- Luxsis(ラグシス)シリーズは弊社(販売)を含むエスケーホームグループにて仕入・設計・施工・販売まで一貫して行なっています。その為、弊社へ直接お問合せ頂いた際には本物件の特徴や情報を細部まで知る事が出来ます。本広告以外で本物件をお知りになったお客様も是非、直接弊社へお問合せください。また、グループ一貫体制ですので、イチ早くお得な情報をお届けする事が出来ます。 取引態様:一般媒介 |
||












